AVA Center

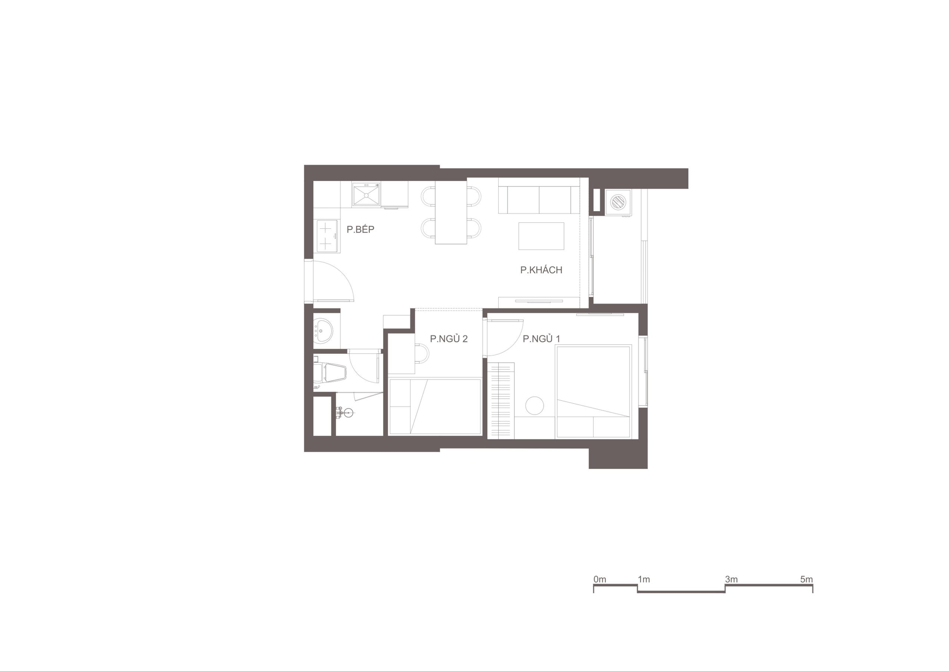
CH.A3-A

Mã căn hộ / ID

CH.A3-A

Loại căn hộ / unit type

1PN+

tầng/ level

Tầng 4-20, 22-40

số lượng / Quantity

36

DTSD / NFA

40

DTXD / GFA

45

Liên hệ tư vấn

CH.A3-A

Các phong cách thiết kế