AVA Center

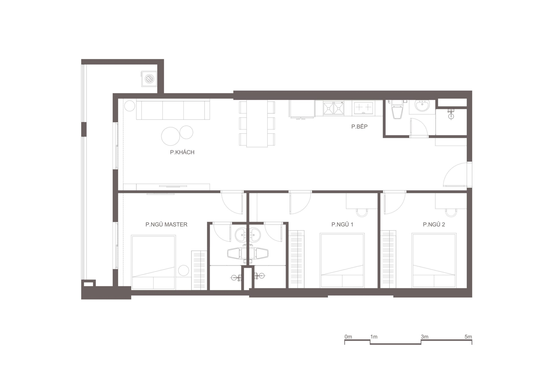
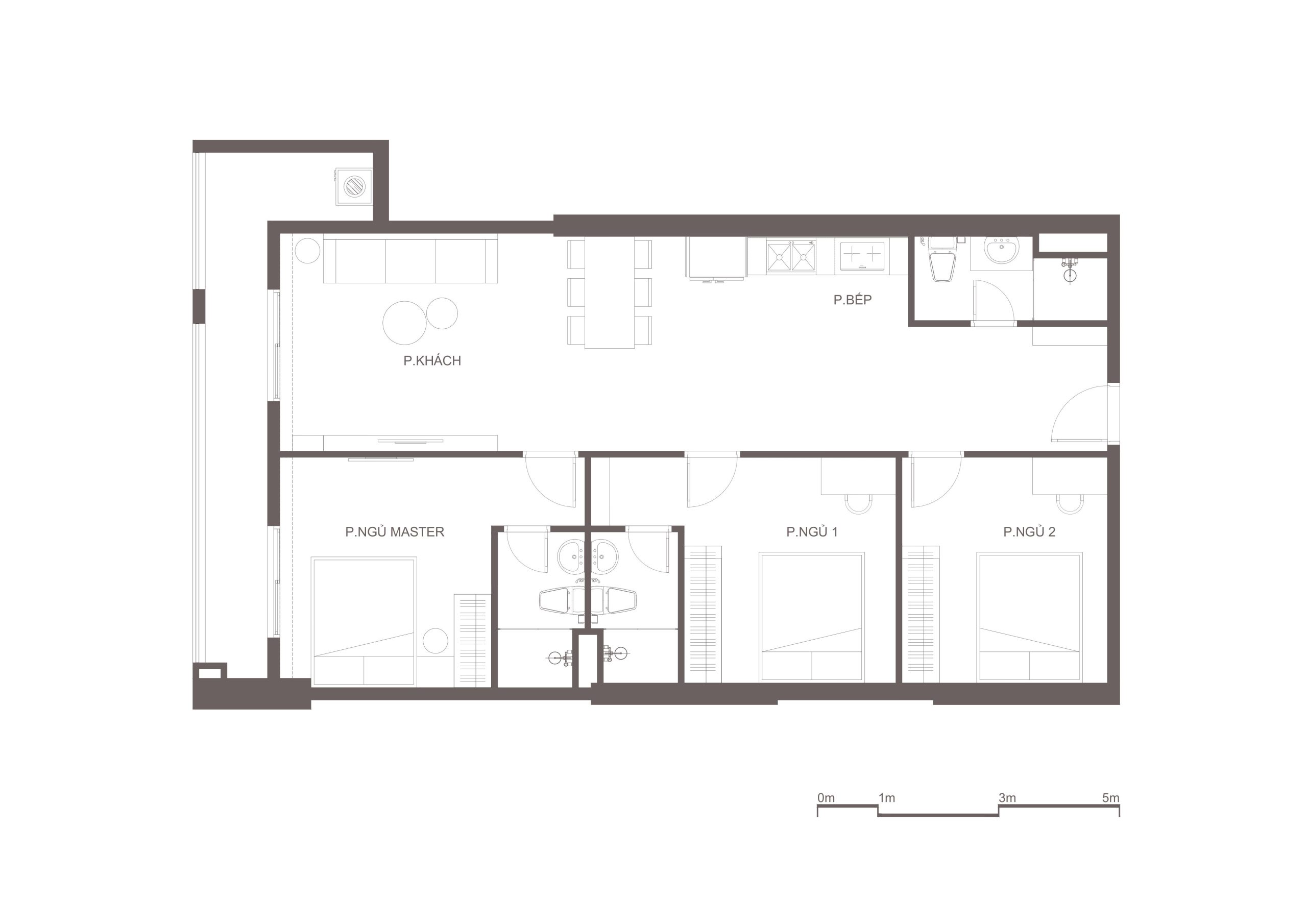
VP.C3

Mã căn hộ / ID

VP.C3

Loại căn hộ / unit type

3PN

tầng/ level

Tầng 2

số lượng / Quantity

1

DTSD / NFA

105.9

DTXD / GFA

114.9

Liên hệ tư vấn

VP.C3

Các phong cách thiết kế